ArchiCAD для дизайнера интерьера

Онлайн-курс, на котором вы освоите проектирование и моделирование интерьеров в ArchiCAD с нуля! Любые дизайнерские идеи в профессиональных 3D-проектах.
  • Продолжительность
    2 месяца
  • Старт обучения
    Каждый понедельник
  • Формат
    Онлайн
  • Документ
    Удостоверение о повышении квалификации НГУАДИ
  • Стоимость
    12 000 ₽
Курс подойдет для тех, кто
Начинающим дизайнерам интерьера, которые хотят научиться проектировать и моделировать интерьеры с помощью ArchiCAD.
Архитекторам или инженерам, занимающимся проектированием зданий и интерьеров, и желающим использовать ArchiCAD для создания 3D-моделей и 2D-чертежей.
Студентам, осваивающим дизайн интерьера и архитектуру, и стремящимся работать в ArchiCAD.
Специалистам, которые хотят расширить профессиональные навыки и освоить новые инструменты и технологии в сфере дизайна интерьера для профессиональной работы.
Чему научитесь?
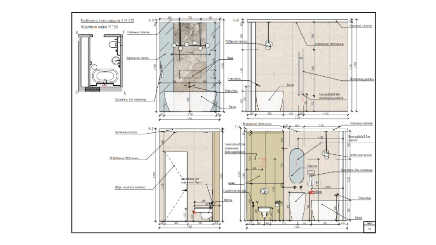
ArchiCAD для дизайнера интерьера 3
Работа с библиотеками элементов — научитесь эффективно использовать стандартные и дополнительные библиотеки готовых объектов, чтобы ускорять процесс п...
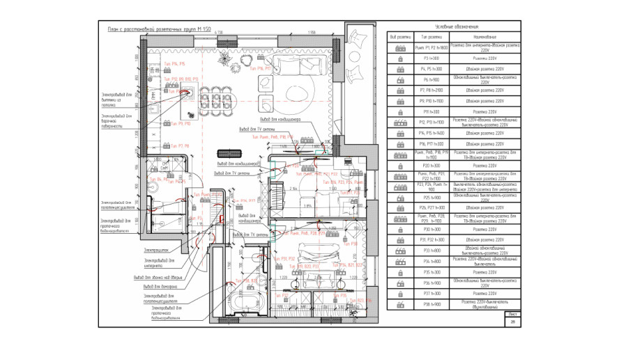
ArchiCAD для дизайнера интерьера 2
Создание рабочей документации — освоите оформление чертежей, разработку ведомостей отделки и подготовку полного комплекта документов для передачи зака...
ArchiCAD для дизайнера интерьера 1
Вычерчивание планов интерьера — научитесь создавать различные планы помещений, грамотно размещать мебель, оборудование и функциональные зоны.
Наши преимущества
Государственная лицензия
Государственная лицензия
На осуществление образовательной деятельности
Удостоверение о повышении квалификации
Удостоверение о повышении квалификации
Документ установленного образца
Обучение в федеральном государственном университете
Обучение в федеральном государственном университете
НГУАДИ — один из ведущих вузов в области архитектурного и дизайнерского образования.
Преподаватели-практики
Преподаватели-практики
Опытные наставники, которые делятся реальными кейсами и лайфхаками.
Все занятия доступны в записи
Все занятия доступны в записи
Курс содержит записанные уроки, которые мы можете смотреть в удобное время.
Налоговый вычет
Налоговый вычет
Вы можете вернуть 13% от стоимости обучения, оформив налоговый вычет.
Как проходит обучение
Видео-уроки
Доступ к качественным видеоурокам, где вы сможете изучать материал в удобном для вас темпе и в удобное время.
Видео-уроки
Чат с поддержкой
Где студенты могут задавать вопросы преподавателю и общаться с другими участниками курса для обмена знаниями и опытом.
Чат с поддержкой
Образовательная платформа
Обучение на курсе осуществляется через образовательную платформу ИДО НГУАДИ, где студентам доступны все необходимые материалы и ресурсы для успешного усвоения учебного материала.
Образовательная платформа
Саммари и конспекты
В дополнение к видеоурокам, на курсах предоставляются саммари и конспекты, обеспечивающие студентам удобное и эффективное освоение учебного материала.
Саммари и конспекты
Итоговый проект
По завершении курса студенты выполняют итоговый проект, демонстрирующий усвоенные знания и навыки, приобретенные в течение обучения.
Записаться сейчас
Итоговый проект
Программа курса
Тема 1
Основы работы в ArchiCAD
Вы познакомитесь с базовой концепцией BIM (Building Information Modeling), узнаете, как установить и настроить ArchiCAD под свои задачи. Изучите стартовые инструменты и основные приёмы работы, чтобы уверенно ориентироваться в программе с первых шагов.
Тема 2
8 ак. часа
Знакомство с интерфейсом
Подробно разберёте расположение панелей, инструментов и команд. Научитесь быстро переключаться между видами и использовать горячие клавиши. Освоите настройку раскладок и сохранение индивидуальных рабочих пространств для удобства работы.
Тема 3
6 ак. часа
Обмерный план
Узнаете, как правильно создать обмерный чертёж, учитывая реальные размеры и особенности помещения. На практике научитесь переносить результаты обмеров в ArchiCAD, чтобы сформировать точную цифровую модель исходного пространства.
Тема 4
6 ак. часа
План реконструкции. Слои
Разберётесь, как создавать схемы перепланировки, изменять конфигурацию стен, дверей и прочих элементов. Познакомитесь со слоями и научитесь грамотно их организовывать для удобства управления проектом и облегчения командной работы.
Тема 5
6 ак. часа
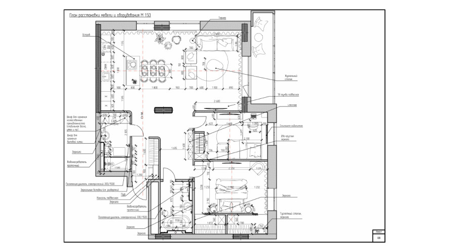
План размещения мебели и оборудования
Научитесь работать с библиотеками и загружать дополнительные элементы. Разместите мебель и технику, соблюдая эргономические нормы и дизайнерские идеи. Поймёте, как сохранять и редактировать готовые наборы мебели и предметов интерьера.
Тема 6
6 ак. часа
План размещения сантехнического оборудования
Разберётесь с принципами точного и удобного отображения санитарно-технических устройств: раковин, ванн, душевых кабин, унитазов и прочего. Научитесь корректно обозначать инженерные коммуникации для последующей передачи проектных данных.
Тема 7
6 ак. часа
План полов. План тёплых полов
Изучите способы моделирования покрытий для всевозможных типов полов. Научитесь добавлять слои и материалы, обозначать стыки и зонирование. Узнаете, как правильно интегрировать систему тёплых полов в общей концепции проекта.
Тема 8
6 ак. часа
План потолков. План молдингов
Разберётесь, как проектировать потолочные конструкции различной сложности, добавлять уровни и декоративные элементы. Научитесь прорабатывать детали молдингов и других элементов, создавая законченный и эстетичный интерьер.
Тема 9
6 ак. часа
План расстановки светильников. План электрооборудования
Узнаете, как логично и эффектно разместить осветительные приборы с учётом функционала и дизайна. Научитесь обозначать розетки, выключатели и другие электротехнические элементы, формируя понятный и удобный план для дальнейшей реализации.
Тема 10
6 ак. часа
Разрез, развёртка
Научитесь строить разрезы помещений и развёртки стен для детальной проработки интерьера. Разберётесь, как уточнять элементы отделки, мебели и декора, чтобы в итоговых чертежах была отображена вся ключевая информация.
Тема 11
6 ак. часа
Спецификации
Изучите способы автоматического формирования спецификаций и ведомостей. Узнаете, как настраивать шаблоны спецификаций, редактировать их внешний вид и быстро получать сметы по выбранным позициям в проекте.
Тема 12
6 ак. часа
Компоновка проекта в альбом чертежей
Научитесь оптимально упорядочивать листы, схемы и планы для удобной передачи проектной документации. Освоите инструменты для оформления альбома в едином стиле, чтобы ваши чертежи выглядели профессионально и презентабельно.
Итоговая работа
4 ак. часа
Итоговая аттестационная работа
Для прохождения итоговой аттестации вы создадите концепт-проект интерьера в ArchiCAD, от обмерного плана до полного комплекта чертежей.
Что вам понадобится?
Компьютер Windows или macOS
Компьютер на операционной системе Windows, Linux или macOS.
ArchiCAD
Версия программы Graphisoft ArchiCAD 25 или выше. Курс снят на версии 25.
Оставьте заявку, чтобы записаться на курс
Преподаватели курса
Рымарев Никита Вадимович
Рымарев Никита Вадимович
Архитектор-визуализатор студии Spectrum, преподаватель ИДО НГУАДИ,
Рымарев Никита Вадимович
  • Преподаватель ИДО НГУАДИ
  • Архитектор-визуализатор студии Spectrum
  • Автор курса «ArchiCad для дизайнеров»‎
Смотреть работы
Учебные работы
2024
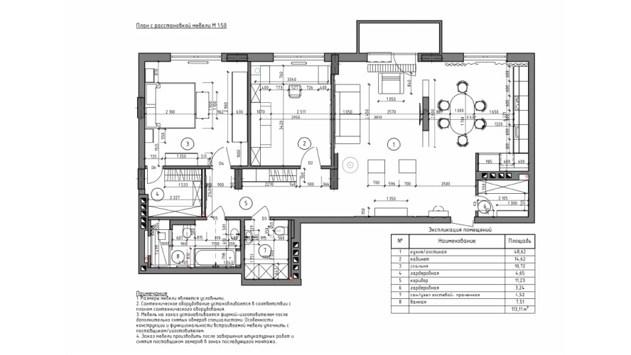
ArchiCAD для дизайнера интерьера 5
Умнова Евгения,
ArchiCAD для дизайнера интерьера
2024
ArchiCAD для дизайнера интерьера 4
Умнова Евгения,
ArchiCAD для дизайнера интерьера
2024
ArchiCAD для дизайнера интерьера 3
Умнова Евгения,
ArchiCAD для дизайнера интерьера
2024
ArchiCAD для дизайнера интерьера 2
Пухова Оксана,
ArchiCAD для дизайнера интерьера
2024
ArchiCAD для дизайнера интерьера 1
Павленко Елена,
ArchiCAD для дизайнера интерьера
Часто задаваемые вопросы
Нужно ли выполнять все практические задания, чтобы получить удостоверение/диплом?
Да, для получения удостоверения о повышении квалификации (или диплом о профессиональной переподготовке) необходимо выполнить все задания по темам и итоговую работу.
Сохраняется ли доступ к материалам после окончания курса?
Доступ к курсу предоставляется на весь период обучения. После его завершения и выдачи документа доступ закрывается.
Могу ли я задать вопрос преподавателю во время обучения?
Да, у каждого курса есть чат в Telegram, где можно задать вопрос преподавателю и общаться с другими участниками обучения.
Будут ли домашние задания и проверка работ?
Да, в каждой теме предусмотрены практические задания. Вы выполняете их самостоятельно и загружаете на образовательную платформу. Все работы проверяются преподавателем.
Можно ли проходить курс с планшета или телефона?
С мобильного устройства можно смотреть видеоуроки, но выполнять практические задания необходимо на компьютере, так как работа по курсу требует полноценной установки программ и использования интерфейса, недоступного на телефоне или планшете.
Нужны ли специальные навыки для начала обучения?
Нет, все курсы рассчитаны на новичков. Обучение начинается с базовых понятий и пошагово ведёт к более сложным приёмам работы.
Какие технические требования нужны к компьютеру для прохождения курса?
Процессор: 64-разрядный многоядерный процессор Intel или AMD с набором инструкций SSE4.2 или выше
Оперативная память: минимум 8 GB, рекомендуется 16 GB и больше
Видеокарта: минимум 4-6 GB видеопамяти с поддержкой DirectX 11
Жесткий диск: SATA SSD
Память на диске: 10-12 GB для установки
Разрешение монитора: Full HD (1920X1080)
Как происходит оплата обучения?

Оплатить обучение можно несколькими способами:

  • Онлайн через личный кабинет с использованием банковской карты.
  • В кассе университета наличными средствами.
  • По реквизитам, указанным в договоре на обучение.

 Выберите наиболее удобный для вас способ!
Какие документы выдаются по окончании обучения?
После окончания обучения по профессиональной образовательной программе выдается удостоверение о повышении квалификации или диплом о профессиональной подготовке.
Какие документы необходимы для поступления?
Для получения документа о повышении квалификации или диплома о профессиональной переподготовке необходимо предоставить следующие документы:

  • Паспорт (страницы с фотографией и регистрацией);
  • СНИЛС;
  • Документ об высшем или среднем профессиональном образовании;
  • Свидетельство о браке (если ФИО в дипломе не совпадает с паспортом).

Эти документы являются обязательными для оформления обучения и получения итогового документа.